The McCall
Barndominium Kit
Starting at:
$141,694
Our McCall Barndominium Kit blends luxury living with smart, efficient design. Built with a durable wood framework, this structure delivers superior performance, beauty, and flexibility—all under one roof. With over 2,400 square feet of customizable space, this barndominium kit can be transformed into anything you envision, whether it’s a custom vacation home, a bright and inviting commercial space, or a spacious garage for your car collection.

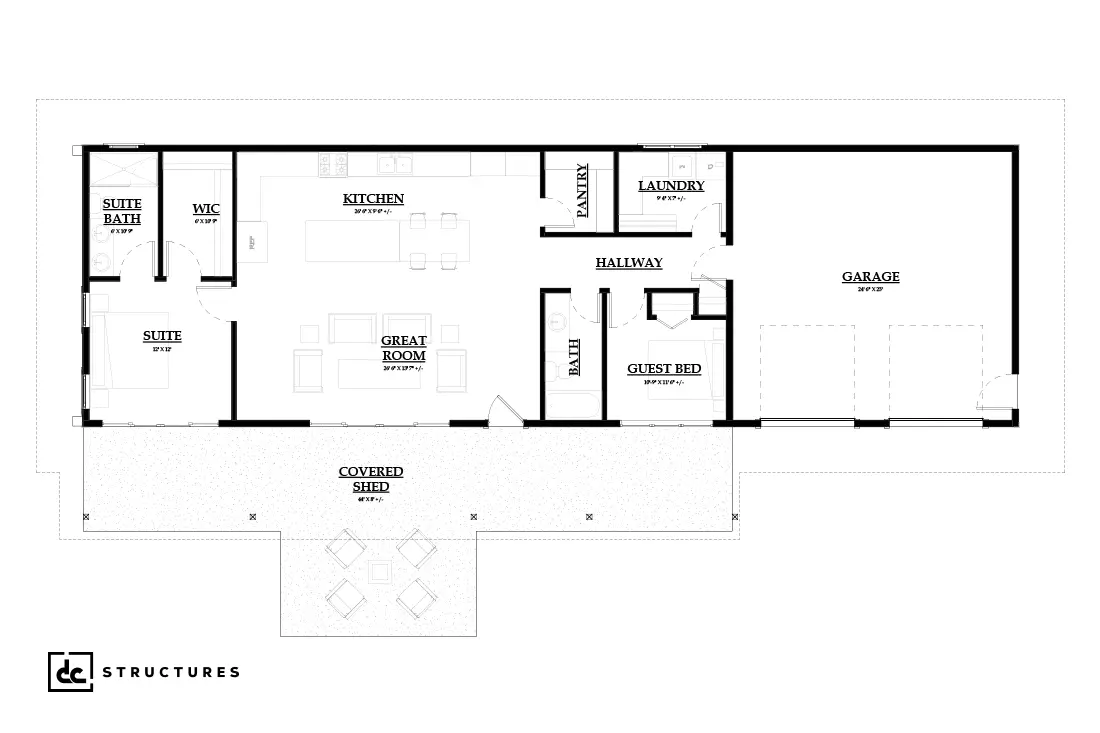
Floorplan
McCall
Barndominium Kit

This modern barndominium design is characterized by its single-slope roof, large picture windows, and integrated outdoor living spaces. This building model features a 1,333 sq. ft. living space and a 587 sq. ft. garage, creating a cozy, contemporary home that brings the outdoors in.
Renderings shown are for illustrative purposes and may include optional upgrades or aesthetic enhancements.
McCall
Barndominium Kit
Roof 3/12 roof pitch, parallel chord roof trusses, CDX roof sheathing, Hardie non-vented soffit panels
FramingDouglas fir structural framing, structural hardware per plan, interior wall framing
Walls2” x 6” exterior wall framing, WRB exterior wall protection system, vapor barrier
Siding Hardie Cedar Mill primed lap siding, trim, and fascia
Floor SystemOpen living space with connected garage
Windows & Doors Window and door package per plan (includes Andersen 100 Series windows)
Design DocumentsStructural blueprints based on standard engineering; wet-stamped plans available as needed
Visualization ToolsTablet pre-loaded with construction documents, 3D model, project dashboard
SupportBuilder resources, construction guide, phone & email support during kit assembly
Garage doors and select window/door packages (varies by model—verify with project coordinator)
Roofing MaterialsFinal roofing layer (i.e., metal panels or shingles), roof vapor barrier
Interior Build-OutInsulation, drywall, paint, cabinetry, flooring, finishes
HVAC, plumbing, electrical wiring, lighting, fixtures
Site WorkSite prep, excavation, foundation, grading, or utility connections
InstallationGeneral contracting, labor, or on-site construction services (may be available through our parent company, DC Builders)
Fully Customizable to Your Vision
Explore the many possibilities for your design with our wide array of options and upgrades. From high-performance wood windows to low-maintenance fiber cement siding, we offer hundreds of premium selections for your building project.

Our Practices on Sustainability
Sustainability is at the heart of every decision we make at DC. From sourcing locally harvested timbers to minimizing waste through precise digital construction and prefabrication, our process is designed to reduce environmental impact at every stage.
Learn more about what sustainability means to us—and how our practices align with broader industry efforts to lower the building sector’s carbon footprint.





























