The Pocatello
Barndominium Kit
Starting at:
$145,511
Named after the “Gateway to the Northwest,” the Pocatello Barndominium Kit combines regionally inspired design with nationwide appeal. With sleek sloped rooflines and modern exterior detailing, this barndominium offers a forward-thinking take on wood construction. Delivered as a pre-engineered building package, the Pocatello features the flexibility to fit your property, vision, and needs—complete with everything you and your builder need to assemble your frame quickly and confidently.

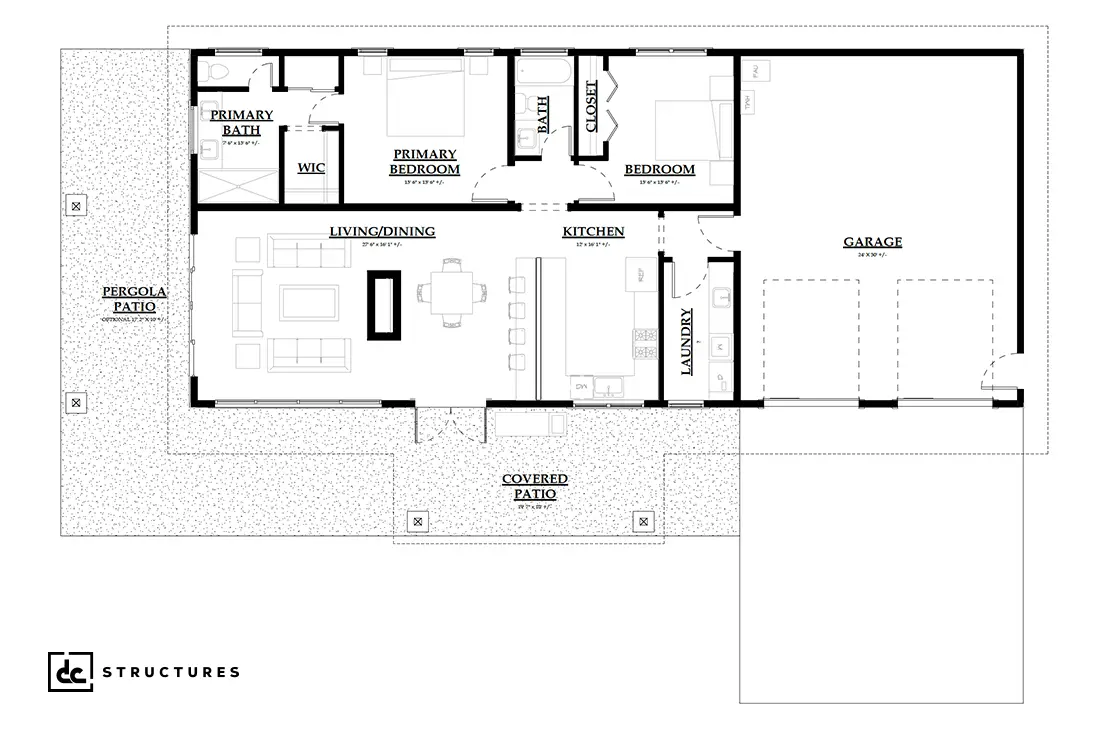
Floorplan
Pocatello
Barndominium Kit

This two-bedroom, two-bathroom barndominium offers the perfect blueprint for a modern home, a winery or brewery business, or a creative workspace. Its expansive window walls, sloped rooflines, and seamless indoor-outdoor living spaces showcase why barndominiums remain a timeless yet modern choice for buyers across the U.S.
Renderings shown are for illustrative purposes and may include optional upgrades or aesthetic enhancements.
Pocatello
Barndominium Kit
Roof 3/12 roof pitch, parallel chord roof trusses, CDX roof sheathing, Hardie non-vented soffit panels
FramingDouglas fir structural framing, structural hardware per plan, interior wall framing
Walls2” x 6” exterior wall framing, WRB exterior wall protection system, vapor barrier
Siding Hardie Cedar Mill primed lap siding, trim, and fascia
Floor SystemOpen living space with connected garage
Windows & Doors Window and door package per plan (includes Andersen 100 Series windows)
Design DocumentsStructural blueprints based on standard engineering; wet-stamped plans available as needed
Visualization ToolsTablet pre-loaded with construction documents, 3D model, project dashboard
SupportBuilder resources, construction guide, phone & email support during kit assembly
Garage doors and select window/door packages (varies by model—verify with project coordinator)
Roofing MaterialsFinal roofing layer (i.e., metal panels or shingles), roof vapor barrier
Interior Build-OutInsulation, drywall, paint, cabinetry, flooring, finishes
HVAC, plumbing, electrical wiring, lighting, fixtures
Site WorkSite prep, excavation, foundation, grading, or utility connections
InstallationGeneral contracting, labor, or on-site construction services (may be available through our parent company, DC Builders)
Fully Customizable to Your Vision
Explore the many possibilities for your design with our wide array of options and upgrades. From high-performance wood windows to low-maintenance fiber cement siding, we offer hundreds of premium selections for your building project.

Our Practices on Sustainability
Sustainability is at the heart of every decision we make at DC. From sourcing locally harvested timbers to minimizing waste through precise digital construction and prefabrication, our process is designed to reduce environmental impact at every stage.
Learn more about what sustainability means to us—and how our practices align with broader industry efforts to lower the building sector’s carbon footprint.




























